搜房源
发布信息
服务热线:15601084512

客服微信>>

手机站 北京 天津 河北 辽宁 山东 其他站 发布信息

广西厂库房网> 南宁库房出租>江南库房出租

出租江南沙井三津自建房和庭院空地

编号:131438

区域:

南宁- 江南

类别:

库房出租

占地面积:

4000平米

价格:

面议

建筑面积:

库房面积:

办公面积:

柱网跨度:

层高:

现配电容量:

分割面积:

地址:

三津村山门口旧菜市

浏览:

谢先生

详细信息

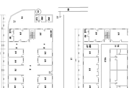
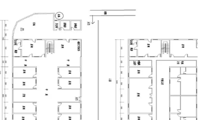
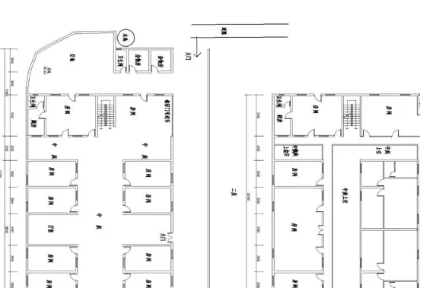
自建房两层,一层房屋建筑面积约350平米,二层25‌‌0平米。一层房屋+庭院空地约800平方,平面图如图。通水通三相电,农村水泥路面通行5米小车。周边有村民,谢绝气味污染及夜间噪音扰民租户,有意电联。

图片展示

品牌企业

相关站点

江南厂房出租

江南工厂出租

江南厂库房出租

江南库房出租

江南仓库出租

江南冷库出租

江南保鲜库出租

江南恒温库出租

江南高台库出租

江南平库出租

江南综合楼出租

江南土地出租

江南场地出租

江南建设用地出租

江南工业用地出租

关于本站- 广告投放- 联系我们- 版权隐私- 免责申明- 意见反馈 返回顶部

版权所有:北京万汇优企科技有限公司 未经授权禁止转载、摘编、复制或建立镜像,如有违反,追究法律责任.

电话:010-56877550

京ICP备14014070号-6